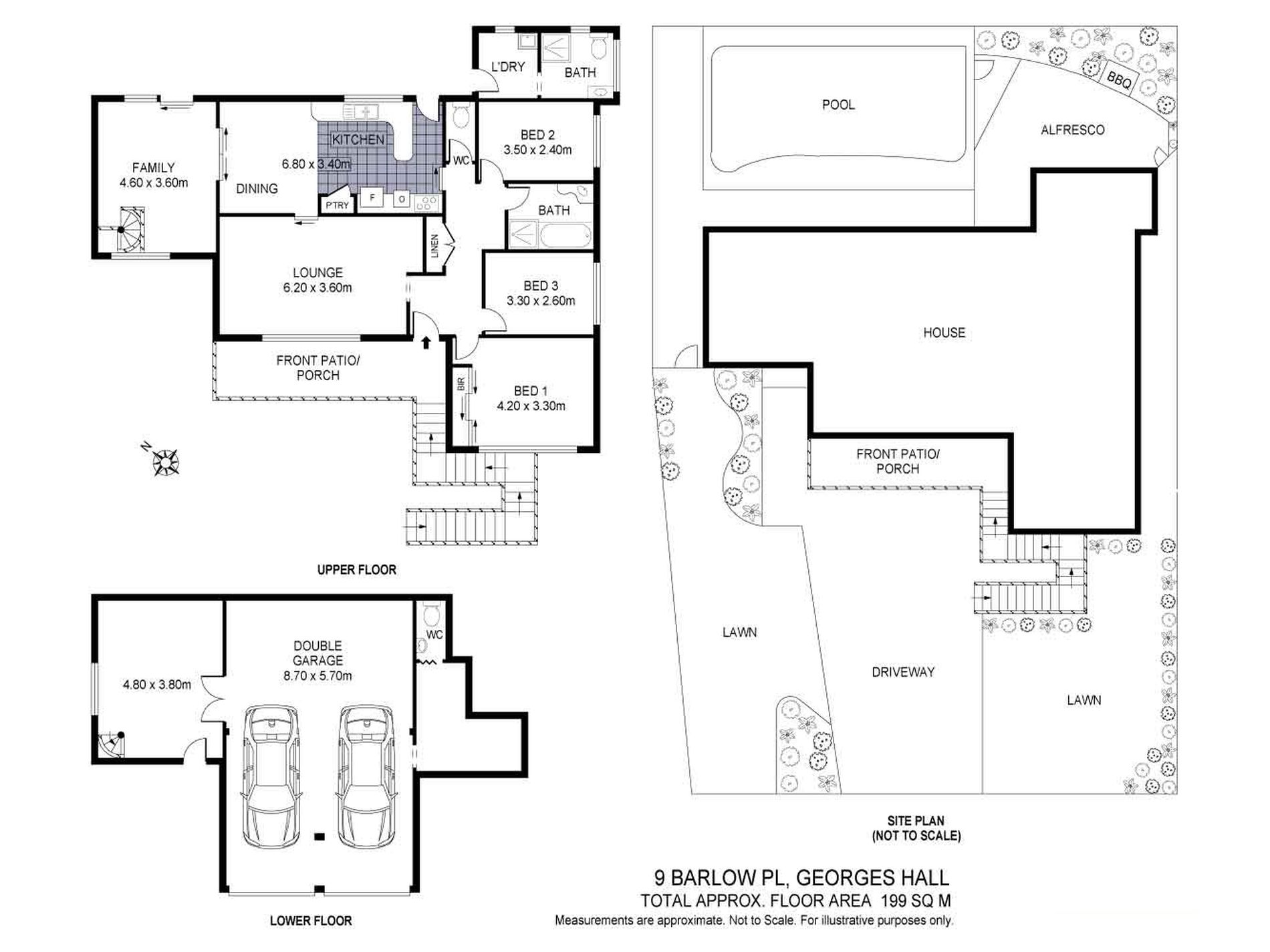
Just renovated this 3-4 bedroom home is perfectly situated in a cul-de-sac street, large bedrooms with built-ins, renovated throughout, modern open plan kitchen, separate lounge and dining area, rumpus room with polished timber floors throughout, home office/work shop, great outdoor entertainment area with an in ground pool.
Features include:
3/4 double bedrooms
Spacious formal lounge
Large eat-in Kitchen
Family room overlooking the in ground pool
Spiral stairs down to an Office/work shop
Double lock up garage
Covered BBQ area.
Features
- Air Conditioning
- Swimming Pool - In Ground











