Situated in one of the most sought after streets in Moorebank! This solid and stylish family residence is a perfect haven for entertaining and life style. With ample living with quality features, dining spaces and gracious floor plan and bonus in-ground pool, only moments away from local schools, transport, shopping centre and much more.
Attributes include:
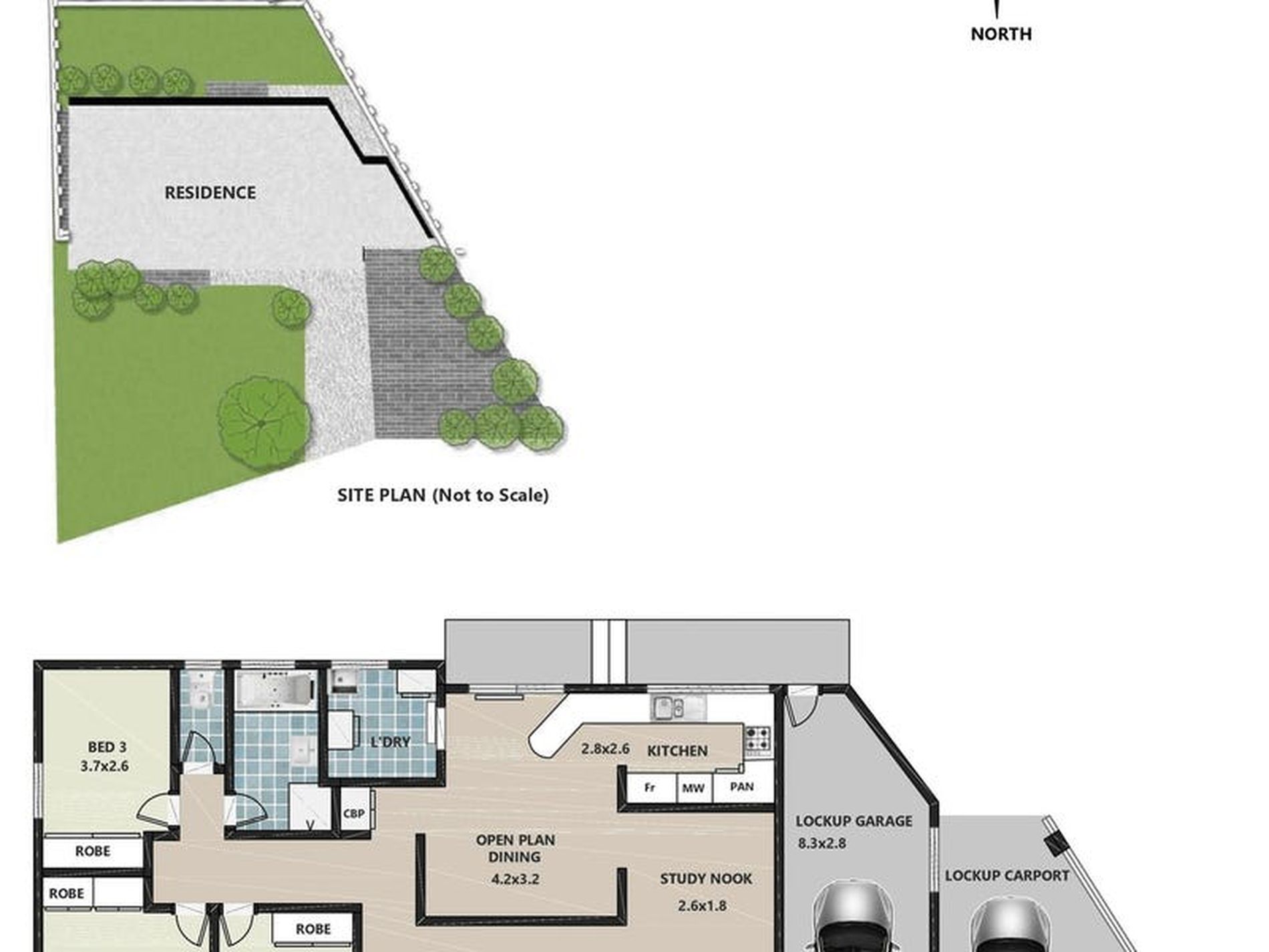
- 3 Bedrooms all with built in robes
- Spacious formal lounge, flowing into the huge dining area
- Gourmet kitchen complimented with lots of storage room
- Hard wood timber floors throughout
- Generous bathroom and external laundry
- Beautiful outdoor entertaining area, beautiful landscapes.
- Bonus in-ground swimming pool
- Single Lock-up garage with bonus covered carport
- Long lease available
For your private inspection call Dean 0404 222 999
Features
- Outdoor Entertainment Area
- Swimming Pool - In Ground



























