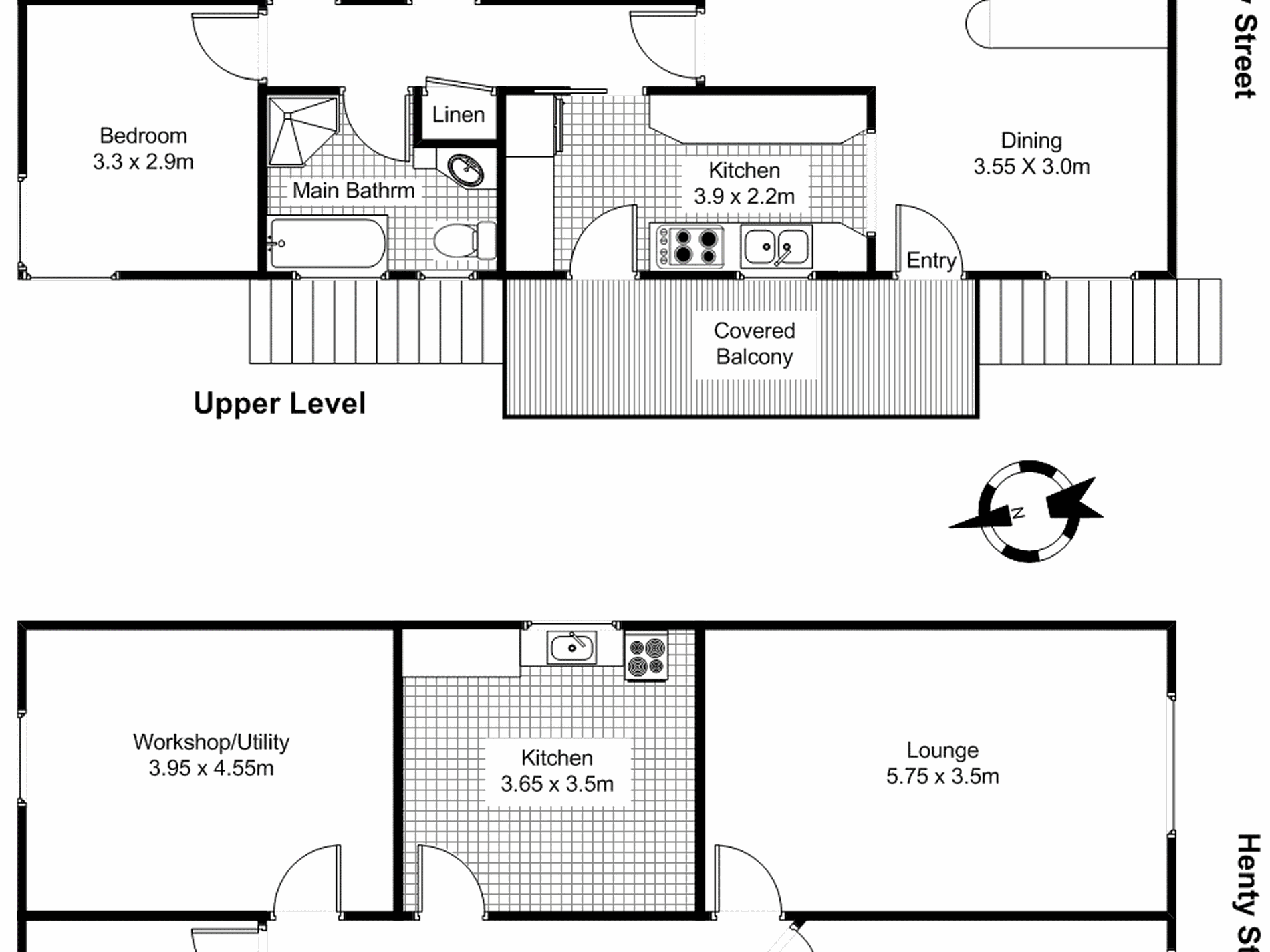
Standing proudly on a quiet street this dual level home provides true dual accommodation ideal for the large or extended family. With separate access offering privacy.
This home is immediately comfortable and provides an opportunity to modernise for enhanced value. The massive open plan living area will suit all occasions and functions with separate dining area, open walk through kitchen with room to move. Timber floors throughout, large modern bathroom and large bedrooms, down stairs has its own large kitchen and lounge room, its own bathroom and laundry.
Out the back you have the entertainment BBQ area with a good size yard that has access to Henty Park. This represents excellent buying with broad lifestyle appeal in a great location. Make your inquiry today.
Features include;
-2x Open plan lounge rooms
-2x Dining areas and 2x Large kitchens
-Lock-up garage with storage area
-Handy to shops, parks, schools, Golf coarse
-Covered entertainers BBQ area
-Access to Henty Park Reserve
We look forward to seeing you at the open house.
Features
- Air Conditioning















