First time on offer in this highly sought after location of Roselands, is this 3 bedroom plus sun-room family home which enjoys an abundance of natural light and beautiful neighbours. Internally the home offers an easy living floor plan ready for you to make your stunning new home. Freshly painted with polished timber floors throughout. Ducted air-conditioning, multiple living areas, modern kitchen which overlooks the child friendly level backyard perfect for entertaining. This property is ideal for the first home buyer or investment for all astute investors.
Features include:
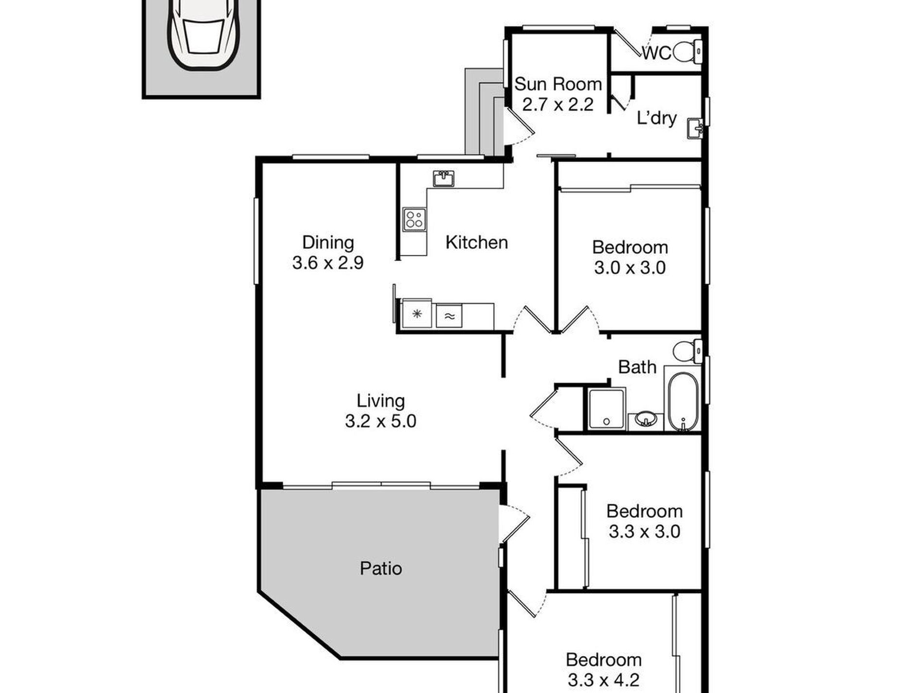
• 3 generous bedrooms all with built-in robes
• Separate lounge & dining areas, bonus sun filled sun-room
• Modern Kitchen with granite bench tops and dishwasher
• Large Bathroom with bath and separate shower
• External 2nd toilet and good size laundry
• Covered car-port. Low maintenance gardens,
• Ducted air-conditioning, polished timber floors
• Future development potential
Only a 2 minute walk to Roselands shopping centre, moments to Narwee train station, Beverly Hills North Public School, local parks and much more.
Inspection highly recommended to appreciate.
Features
- Air Conditioning
- Balcony
- Secure Parking
- Floorboards























